Endurnýjun útisvæðis sundlaugar í Reykholti
Í fjárhagsáætlun Bláskógabyggðar, sem samþykkt var 11. desember s.l., er gert ráð fyrir framkvæmdum við endurbyggingu útisvæðis sundlaugarinnar í Reykholti, þ.e. sundlaugarinnar sjálfrar, heitra potta og allra lagna og tæknibúnaðar sem því fylgja. Frumhönnun verksins var lokið í byrjun desember og gerir áætlun ráð fyrir að verkframkvæmdir hefjist haustið 2025 og að þeim verði lokið í september 2026. Ástand núverandi mannvirkja er orðið mjög bágborið, en áætlunum um endurnýjun útisvæðisins var skotið á frest árið 2018 þegar ráðast þurfti í byggingu leikskóla.
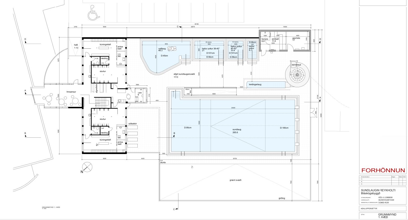
Nánar tiltekið snýst verkefnið um að endurnýja sundlaugarsvæðið og bæta þar með aðgengismál, en laugarsvæðið verður hækkað í sömu hæð og gólf núverandi byggingar og verða tröppur frá búningsklefum þá aflagðar. Nýtt sundlaugarsvæði mun samanstanda af 25 metra sundlaug með fjórum sundbrautum, vaðlaug, heitum pottum, köldum potti, eimbaði, rennibraut og vaktrými. Þá er gert ráð fyrir að hægt verði að stækka líkamsræktaraðstöðu á neðri hæð.
