Framkvæmdir hefjast við sundlaug í Reykholti

Fréttir 06.09.2025

Föstudaginn 5. september var ritað undir samning Bláskógabyggðar við Norðanmenn ehf, Flúðaverktaka ehf og Rörið ehf um endurnýjun útisvæðis sundlaugarinnar í Reykholti. Framkvæmdir hefjast þriðjudaginn 16. september og skal þeim lokið 1. september 2026. Verkið tekur til jarðvinnu, uppsteypu, lagna-, loftræsti- og raflagnakerfa og alls frágangs að utan og innan. Framkvæmdasvæðið verður afmarkað á næstu dögum. Síðasti opnunardagur sundlaugarinnar verður fimmtudaginn 11. september, en íþróttahús og æfingasalur verða að mestu opin á meðan á framkvæmdum stendur. 

Á myndinni eru fulltrúar Bláskógabyggðar og verktaka. 

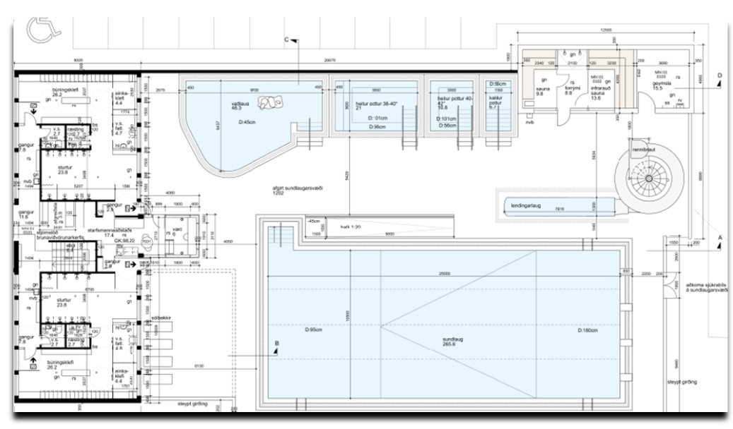
Yfirlitsmynd sundlaugarsvæðis.