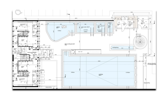
Verkið sundlaug í Reykholti Bláskógabyggð, endurnýjun laugarsvæðis

Fréttir 23.07.2025

Eitt tilboð barst í verkið sundlaug í Reykholti, Bláskógabyggð, endurnýjun laugarsvæðis, á opnunarfundi sem haldinn var hinn 18. júní 2025. Tilboðið hefur verið yfirfarið af verkkaupa og endurskoðað af bjóðendum sem eru Norðanmenn ehf, Rörið ehf og Flúðaverktakar ehf. Endurskoðað tilboð var lagt fyrir fund sveitarstjórnar sem haldinn var 17. júlí s.l að fjárhæð kr. 713.387.983. Samkvæmt kostnaðaráætlun var áætlað að kostnaður næmi kr. 644.569.846. Á sveitarstjórnarfundi var samþykkt að taka hinu endurskoðaða tilboði og sveitarstjóra falið að ganga frá samningi við verktakana.
Áætlað er að framkvæmdir hefjist strax eftir réttir og að verkinu verði lokið í september 2026.
Gert er ráð fyrir að sundkennsla við Reykholtsskóla fari fram í lotu sem hefjist við upphaf skólaárs í ágúst n.k. og standi þar til sundlauginni verður lokað vegna framkvæmdanna.